Informações sobre o Imóvel


Fotos do Imóvel (Clique na foto ampliar)


Imóvel : ( CA3133 )
Tipo de Imóvel: Casa
Transação: Venda
Bairro: Cruzeiro
Cidade: Caxias do Sul

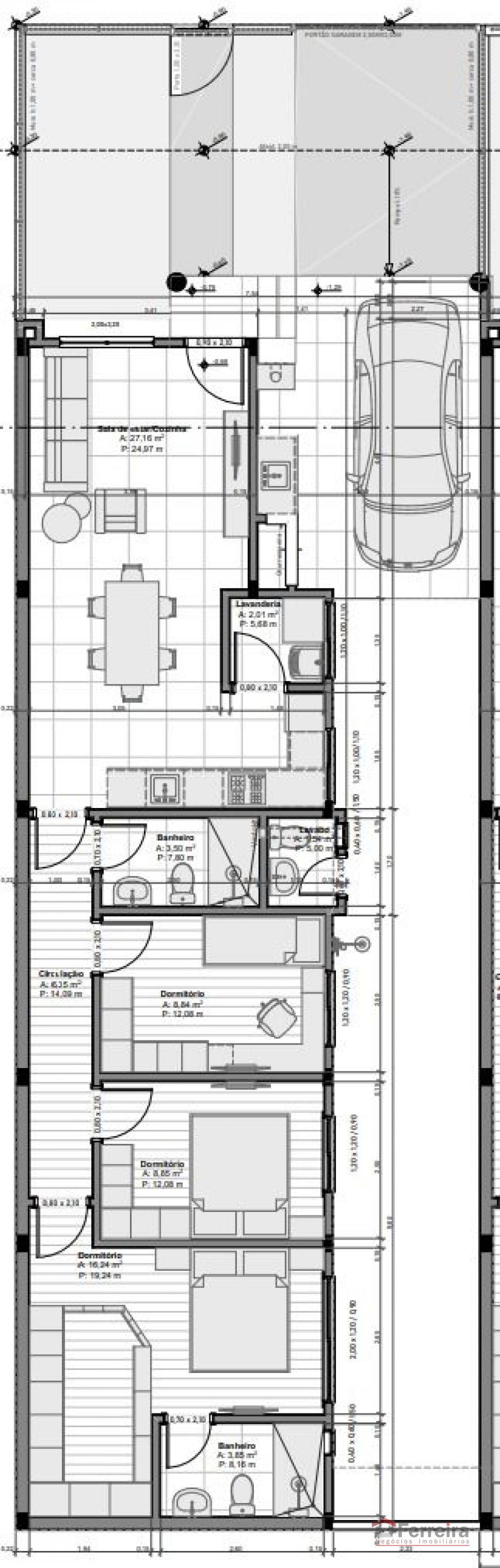
Áreas:
Privativa : 111 m2

Valor em R$ 850.000,00

Casa Moderna Prime

Descrição do Imóvel:

Unidade Térrea Exclusiva | Sofisticação, Conforto e Localização Estratégica!

Apresentamos esta unidade térrea com fachada exclusiva, pensada para quem valoriza elegância, funcionalidade e qualidade construtiva em cada detalhe. Um projeto contemporâneo, com ambientes integrados, excelente iluminação natural e acabamento de alto padrão.

Com 111 m² de área construída, o imóvel oferece uma planta inteligente e fluida, onde a sala e a cozinha integradas com pé-direito duplo criam uma sensação única de amplitude e bem-estar, perfeita para viver e receber.

Características do imóvel

03 dormitórios, sendo 1 suíte com closet
Banheiro social + lavabo
Espaço gourmet com churrasqueira
Lavanderia funcional
Garagem fechada + 1 vaga externa
Pátio frontal e lateral, trazendo mais privacidade e ventilação

Acabamentos e diferenciais

Piso porcelanato nas áreas sociais e laminado nos dormitórios
Rebaixo em gesso
Espera para água quente
Espera para ar-condicionado split
Frente norte, com iluminação natural privilegiada ao longo de todo o dia

Localização, Bairro Cruzeiro | Caxias do Sul/RS

Situado em uma das regiões mais valorizadas da cidade, com fácil acesso ao centro e à UCS, próximo a mercados, comércios e transporte público, unindo praticidade e qualidade de vida.

Status da obra

Início: março/2025
90% concluída
Previsão de entrega: início de 2026

Uma oportunidade ideal para quem busca morar bem ou investir com segurança, em um imóvel moderno, bem localizado e com alto potencial de valorização.

Entre em contato e garanta essa unidade exclusiva com um de nossos especialistas através do fone (54)3215.3820 .

(Preços sujeitos a alteração)


Ferreira Negócios Imobiliários
Av. Bom Pastor, 420
Esq. Perimetral Sul
Bairro Kayser
Caxias do Sul - RS
CEP 95096-150
Fone:
(54) 3215.3820

E-mail: